Používame cookies

Súbory cookie a ďalšie technológie sledovania používame na zlepšenie vášho zážitku z prehliadania našich webových stránok, na to, aby sme vám zobrazovali prispôsobený obsah a cielené reklamy, na analýzu návštevnosti našich webových stránok a na pochopenie toho, odkiaľ naši návštevníci prichádzajú. Viac info

2-izb. apartmán v NIDO II

  • Exkluzívna ponuka

Popis nehnuteľnosti

Zdieľať na Facebooku

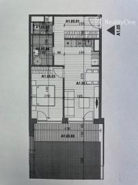
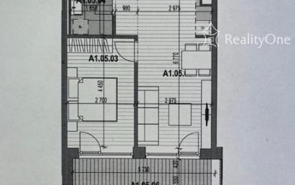
Ponúkame Vám na predaj skolaudovanú novostavbu v ocenenom projekte NIDO2 - 2 izbový apartmán (možnosť trvalého bydliska) na 1. poschodí Bratislava-Nové Mesto,  Tomášikova/Trnavská cesta.  
- úžitková plocha bytu 48,4 m2
- plocha pivnice 2,38 m2
- plocha predzáhradky 29,25 m2
- garážové státie
- kompletne zariadené, k nasťahovaniu

Dispozícia bytu: vstupná chodba s vyhradeným miestom pre šatník, z ktorej sa vstupuje na toaletu s umývadlom a priestorom pre skrinku, kúpeľňa so sprchovacím kútom a miestom pre pračku a sušičku, obývačka spojená s kuchynským kútom, spálňa. Z obývačky aj zo spálne je možné vyjsť na terasu s predzáhradkou, na ktorej je vysadený trávnik. Orientácia bytu je juho-východ, byt je presvetlený veľkými oknami až po zem, zároveň chránený proti hluku od križovatky administratívnou budovou, ktorá sa na noc vyprázdni a v komplexe ostáva súkromie.
Majitelia momentálne riešia vytvorenie súkromia v predzáhradke nákupom vysokých tují, ktoré budú umiestnené zo strany od recepcie.

Byt je v štandarde: drevené podlahy, veľké drevené okná až po podlahu (trojsklo), interiérové dvere, zariadená kúpeľňa a WC, bez kuchynskej linky, klimatizácia, sieťky na oknách a predpríprava na vonkajšie žalúzie.

K bytu patrí pivnica a parkovací box na -1.PP.
V polyfunkčnom objekte je 24h recepcia, kamerový systém, celý areál je oplotený, kde majú prístup iba rezidenti. Využívať môžete hobby miestnosť na rôzne oslavy alebo ako detský kútik.
Lokalita, v ktorej sa NIDO nachádza sa už berie ako širšie centrum mesta, hneď za objektom je jazero Kuchajda so športoviskami, bežeckou dráhou, možnosťou kúpania, ... Pred budovou je zástavka MHD do centra mesta (5 min.), hneď vedľa Kaufland, oproti Fresh market, vlaková stanica alebo z druhej strany OC VIVO.

Cena bytu so zariadením, vrátane pivnice: 285 000 €
Cena parkovacieho státia: 25 000 €

Kontakt: 0907826574

https://youtube.com/shorts/S6aU1vSMVAI?si=k5VqQk20SnhUaknE

 

 

Vlastnosti

Status:
aktívne
Vlastníctvo:
osobné
Úžitková plocha:
80 m2
Podlahová plocha:
48.4 m2
Stav:
novostavba
Počet izieb:
2
Energetický certifikát:
A
Typ budovy:
tehla
Typ výbavy:
kompletne vybavený
Terasa:
áno
Garáž:
áno
Pivnica:
áno
Výťah:
áno
Rok kolaudácie:
2023
Pozícia:
vyššie poschodie
Poschodie:
1
Celková plocha:
80 m2
Terasa plocha:
29.25 m2
Počet terás:
1
Počet garáží:
1
Pivnica plocha:
2.38 m2
Počet pivníc:
1
Orientácia:
juh

Hypotekárna kalkulačka

Video

285 000 €
Ulica: Trnavská cesta
Mestská časť: Pasienky / Kuchajda
Obec: Bratislava-Nové Mesto
Okres: Bratislava III
Kraj: Bratislavský kraj
Druh: Byty
Typ: Predaj
Typ bytu: 2-izbový byt

Ing. Tatiana Letenayová

  • Česky
  • Slovensky
  • English

Radi Vám poradíme