Používame cookies

Súbory cookie a ďalšie technológie sledovania používame na zlepšenie vášho zážitku z prehliadania našich webových stránok, na to, aby sme vám zobrazovali prispôsobený obsah a cielené reklamy, na analýzu návštevnosti našich webových stránok a na pochopenie toho, odkiaľ naši návštevníci prichádzajú. Viac info

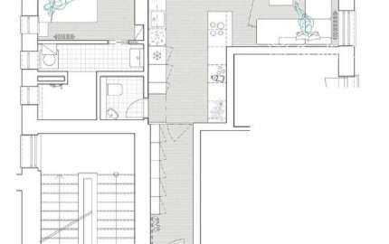
Zariadený 2-izb. byt v historickom centre

Popis nehnuteľnosti

Zdieľať na Facebooku

Predáme 2-izbový byt v historickom centre (Palisády) na Gunduličovej ul.
- kompletná rekonštrukcia budovy a bytov
- 2.nadzemné podlažie
- byt o výmere 58,4 m2
- byt sa momentálne zariaďuje kuchynským kútom, vstavanými skriňami v chodbe a v spálni, kompletným nábytkom (posteľ, sedačka, jedálenský stôl, stoličky,...)
- tehlová budova s výťahom
- vinylové podlahy prvotriednej kvality
- dlažba, obklady a sanita značky Villeroy&Boch
- interiérové dvere SAPELI
- vchodové bezpečnostné protipožiarne dvere ADLO
- protihlukové plastové okná, strešné drevené okná s izolačným trojsklom
- klimatizácia, slaboprúdové rozvody pre internet, TV a videovrátnik
- vchod do budovy je zabezpečený elektronickým čipom, kamerovým systémom a budova je napojená na alarm

Cena: 322.500 EUR - kompletne zariadený
Kontakt: 0907826574
 

Vlastnosti

Status:
aktívne
Vlastníctvo:
neurčené
Úžitková plocha:
58.4 m2
Stav:
novostavba
Balkón:
áno
Výťah:
áno
Rok poslednej rekonštrukcie:
2024
Pozícia:
vyššie poschodie
Celková plocha:
58.4 m2

Hypotekárna kalkulačka

322 500 €
Ulica: Gunduličova
Obec: Bratislava-Staré Mesto
Okres: Bratislava I
Kraj: Bratislavský kraj
Druh: Byty
Typ: Predaj
Typ bytu: 2-izbový byt

Ing. Tatiana Letenayová

  • Česky
  • Slovensky
  • English

Radi Vám poradíme