Používame cookies

Súbory cookie a ďalšie technológie sledovania používame na zlepšenie vášho zážitku z prehliadania našich webových stránok, na to, aby sme vám zobrazovali prispôsobený obsah a cielené reklamy, na analýzu návštevnosti našich webových stránok a na pochopenie toho, odkiaľ naši návštevníci prichádzajú. Viac info

Kancelárie na predaj

Popis nehnuteľnosti

Zdieľať na Facebooku

Predáme administratívne priestory v BUDOVA C AIR OFFICES – Pestovateľská 2.
Budova sa nachádza oproti IKEA vedľa obchodného centra KORZO v priamom kontakte s privádzačom 
na diaľnicu D1, v blízkosti letiska M. R. Štefánika. 
Poloha areálu je viditeľná z vysoko frekventovanej diaľnice a aj cesty k nákupnému centru AVION, IKEA 
a v neposlednom rade k letisku. Celková podlahová plocha budovy je 3500m2 a má 5 nadzemných podlaží
s nákladným výťahom. Podlažia majú svoju vlastnú kuchynku a oddelené toalety pre pánov, dámy a invalidov.

Priestor č. 114 na 1P (pôdorys čísla: 114,115,116,117)
Výmera spolu s podielom na spoločných častiach budovy: 90,68m2
Cena: 163 224€

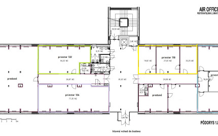
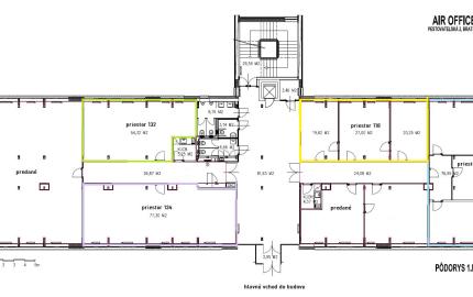
Priestor č. 118 na 1P (pôdorys čísla: 118,119,120)
Výmera spolu s podielom na spoločných častiach budovy: 78,09m2
Cena: 140 562€

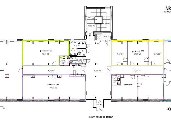
Priestor č. 132 na 1P (pôdorys číslo: 132)
Výmera spolu s podielom na spoločných častiach budovy: 64,22m2
Cena: 115 596€

Priestor č. 134 na 1P 
Výmera spolu s podielom na spoločných častiach budovy: 92,56m2
Cena: 166 608€

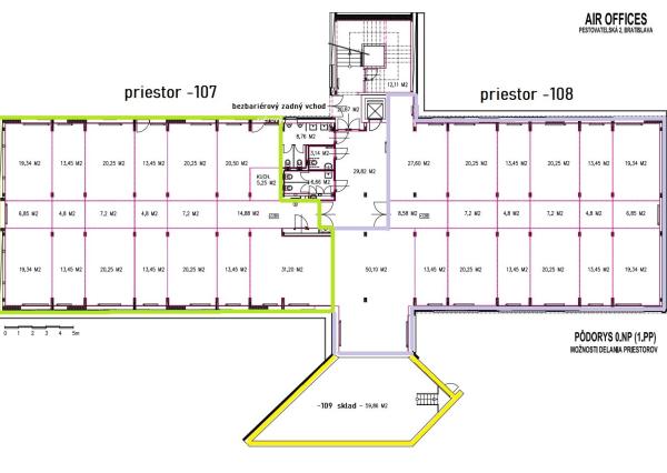
Priestor č. -107 na prízemí  zo zadnej strany budovy veľké presklenie priestoru s východom priamo z kancelárii aj malú terasu a na parkovisko 
Výmera spolu s podielom na spoločných častiach budovy: 350,72m2
Cena: 631 296€

Priestor č. -108 na prízemí
Výmera spolu s podielom na spoločných častiach budovy: 368,00m2
Cena: 662 400€

Priestor č. -109 na prízemí -sklad
Výmera spolu s podielom na spoločných častiach budovy: 72,18m2
Cena: 129 924€

Parkovacie miesta: 7.000 € za jedno státie. 
Všetky ceny sú bez DPH.

Kontakt: 0907826574
www.realityone.sk

Vlastnosti

Status:
aktívne
Stav:
úplne prerobený
Cena v RK
Ulica: Pestovateľská
Obec: Bratislava-Ružinov
Okres: Bratislava II
Kraj: Bratislavský kraj
Druh: Priestory
Typ: Predaj
Typ objektu: Kancelárske priestory

Ing. Tatiana Letenayová

  • Česky
  • Slovensky
  • English

Radi Vám poradíme